REQUEST A TOUR If you would like to see this home without being there in person, select the "Virtual Tour" option and your agent will contact you to discuss available opportunities.
In-PersonVirtual Tour

$1,250,000
Est. payment /mo
1.82 Acres Lot
UPDATED:
Key Details
Property Type Vacant Land
Sub Type Unimproved Land
Listing Status Pending
Purchase Type For Sale
MLS Listing ID ML81727125
HOA Y/N No
Lot Size 1.820 Acres
Acres 1.82
Property Sub-Type Unimproved Land
Property Description
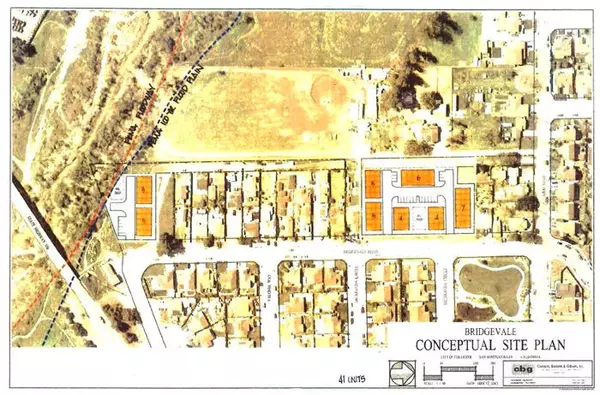
Two parcels on Bridgevale Road, Hollister, consisting of 1.826 acres (Parcel 31) and 1.428 acres (Parcel 32) for a total of 3.25 acres within the jurisdiction of the County of San Benito and zoned RM residential medium density up to 20 units/acre. The Parcels have views of the San Benito River and are across the street from a city park. Both parcels are being sold together and connected via easement. The property is ideal for building apartments and could accommodate approximately 55 units (36 units on parcel 31 and 19 units on parcel 32). The demand for apartment products in San Benito County is high. The property is approved for city water and sewer service, and only requires County over-the-counter (Administrative) County staff site plan and design approval to build apartments. A previous buyer has a current project for 55 townhome-style apartments approved by San Benito County for the two parcels. If a buyer is interested in the currently approved project design, the Seller can help arrange the purchase of the plans.
Location
State CA
County San Benito
Zoning m
Interior
Fireplace No
Building
New Construction No
Schools
School District San Benito High
Others
Tax ID 019240031000
Read Less Info

© 2025 BEAR, CCAR, bridgeMLS. This information is deemed reliable but not verified or guaranteed. This information is being provided by the Bay East MLS or Contra Costa MLS or bridgeMLS. The listings presented here may or may not be listed by the Broker/Agent operating this website.
Listed by Moon Choe • Blue Moon Realty

